1 083 m2

KODU LOOMISE TEEKOND ALGAB SIIT - TEE OMA PAKKUMINE

Müüa Maa, 1083m2, Suurekivi tee, Randvere küla, Viimsi vald, Harju maakond

220 000 €
203 €/m2
Võta ühendust

Andmed

  • Kinnistu pind: 1 083 m2
Asukoht Google Mapsis

Info

Müügile on tulnud suurepärase potentsiaaliga kinnistu Viimsi vallas. Siin on ideaalne võimalus võtta üle pooleliolev ehitus ning viia lõpuni kodu loomine looduslähedases ja peresõbralikus piirkonnas, Randvere külas.

KINNISTU JA ÜKSIKELAMU PROJEKT
Kinnistu on 1083m2, millele on ligipääs avalikult värskelt rekonstrueeritud Suurekivi teelt. Plaatvundament valmis sügisel 2021. Lisaks paigaldatud katusefermid ning valmis puitkarkass.

Kinnistul asuvad viljapuud, põõsad ja okaspuud. Olemas soojustusmaterjal, Cedral´i fassaadi- ja katusematerjal (väärtuses 16 000€, värvuselt õrn helesinine). Hinnas projekt. Paigaldatud on sademevete kogumismahuti ning mahuti äravool. Liitumised kinnistul olemas ja tasutud (vesi-ja kanalisatsioon, elekter 16A).

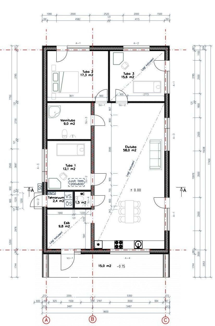
Projekt näeb ette valgusküllast ja ökonoomset 4-toalist ühepereelamu, kus on kolm magamistuba ning avar, ligi 58m² suurune avatud köök-elutuba. Hoonesse on projekteeritud vesipõrandaküte, õhk-vesi soojuspumba baasil ja soojustagastusega sundventilatsioon.

- Ehitisealune pind 167,0m2;
- Suletud netopind 125,7m2 (eluruumi pind 123,3m2 ja tehnopind 2,4m2);
- Ehitusluba on väljastatud 23.12.2020;
- Maa sihtotstarve: Elamumaa 100%

ÜMBRUSKOND
Lähedal asuvad lasteaed ja Randvere kool, jalutuskäigu kaugusel on terviserada. Kinnistu vastas riigimets, metskitsed võivad olla sagedased külalised hoovis. Meri asub vahetus läheduses, piirkonna isiklik rannaala ca 150m kaugusel. Ümbruskond on vaikne ja looduslähedane, ideaalne keskkond peredele.

Kui tunned, et siin võiks olla Sinu uus kodu, siis helista, lepime aja kokku ja lähme koos vaatama!

Kuulutuses olev 3D pilt on illustratiivne.

Omadused

  • Elekter
  • Linna vesi
  • Tsentraalne kanalisatsioon